| Sign In | Join Free | My enlightcorp.com |
|
Brand Name : Dongdai
Model Number : ZBGX-16
Certification : 9001
Place of Origin : China
MOQ : 1 Set
Price : Negotiatable
Payment Terms : T/T, Wechat Pay, Alipay
Supply Ability : 1000 Sets per Years
Delivery Time : 3-5 weeks
Packaging Details : Export polywood
Standard : ISO
Material : Carbon steel
Power Of Motor N(KW) : 0.37Kw
Product name : Half Bridge Type Sludge Scraper System
Pool Width : 16m
Service : OEM,Customized Design
Packing : According to customers requirements
Sample : Accessories Available
Sludge Scraper System Suction And Discharge Of The Secondary Sedimentation Tanks Half Bridge Type
Attention:
All types of equipments can be customized according your requirement. Please feel free to tell your parameters, flow charts or other demands. Quick Reply will be delivered in 12 hours by email or online chat.
Structure and Working Principle
The equipment adopts central transmission and vertical frame type. The sewage enters the surrounding water distribution tank and flows evenly into the pool through the water distribution holes at the bottom of the tank. Under the action of the peripheral water retaining skirt, the water flows from the bottom of the pool to the center, and the sludge depends on its own weight. The sludge is deposited on the bottom of the pool to form a sludge-water separation. The driving device drives the central vertical frame to rotate, and drives the scraper arm and the suction pipe to rotate. Under the action of hydrostatic pressure, the sludge evenly enters the suction port arranged on the suction pipe, and then passes through the central discharge. The sludge pipe is discharged out of the pool through the sleeve valve of the sludge drain well. The amount of sludge discharged can be controlled by the lifting degree of the sleeve valve. The scum on the water surface is skimmed to the edge of the pool by the slag skimmer device, and then scraped into the drain by the scraper rake and discharged out of the pool; while the supernatant is discharged into the water outlet trough through the triangular water outlet weir plate.
Parameters
| Parameter / model Pool widthΦ(m) | ZBGX-16 | ZBGX-20 | ZBGX-25 | ZBGX-30 | ZBGX-35 | ZBGX-40 | ZBGX-45 | ZBGX-50 | ZBGX-55 | |
| 16 | 20 | 25 | 30 | 35 | 40 | 45 | 50 | 55 | ||
| Deep pool depth H(m) | 3.5~4.5(According to the user's requirements) | |||||||||
| Pool side water depth H2(m) | 3.0~4.0(According to the user's requirements) | |||||||||
| Around the line speed V(m/min) | 1.8~2.2 | |||||||||
| Walking wheel dimensions (mm) | 400x120 | 420x150 | ||||||||
| Power of motor N(KW) | 0.37 | 0.55 | 0.75 | |||||||
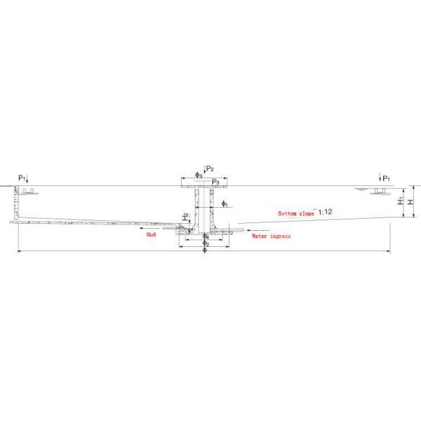
| Installation size (mm) | Φ1 | 1100 | 1100 | 1200 | 1200 | 1500 | 1500 | 1800 | 1800 | 1800 |
| 2 | 2500 | 2500 | 2500 | 3500 | 4000 | 4500 | 5000 | 5500 | 6000 | |
| Φ3 | 2600 | 3000 | 3800 | 4500 | 4500 | 4500 | 5000 | 6000 | 6000 | |
| Φ4 | 2100 | 2300 | 3500 | 4000 | 4000 | 4000 | 4500 | 4500 | 4500 | |
| H2 | 500 | 500 | 009 | 760 | 760 | 760 | 760 | 760 | 760 | |
| B | According to the user's requirements | |||||||||
| H3 | According to the user's requirements | |||||||||
| L | According to the user's requirements | |||||||||
| Around the wheel pressure P1(KN) | 9.0 | 11.5 | 15 | 19 | 22 | 25 | 28 | 30 | 32 | |
| Vertical load of the central platform P2(KN) | 17 | 23 | 30 | 37 | 82 | 100 | 112 | 122 | 175 | |
| Center load of center load P3(KN) | 9.5 | 13 | 17 | 22 | 28 | 28 | 30 | 32 | 40 | |
Application
The ZCX type central drive single (double) pipe suction machine is suitable for large and medium-sized sedimentation tanks with peripheral water intake, peripheral water discharge, and central sludge discharge. It is mainly used for the suction and discharge of the secondary sedimentation tanks of urban sewage treatment plants.
Main Features
1. The inlet and outlet troughs around the sedimentation tank are designed with side-sections to ensure uniform water distribution and outflow around the sedimentation tank.
2. The driving device adopts a combination of a helical gear reducer and a worm gear reducer to ensure the output torque and speed, and the transmission effect is high; the reducer is equipped with an excessive torque protection device, which is safe and reliable in operation.
3. When φ≤40m, a single-sided straw is used, and if φ>40m, a double-sided straw is used.
4. The sludge suction pipe uses a horizontal perforated pipe to discharge the sludge, which does not interfere with the density flow in the tank and ensures the stability of the water.
5. sludge suction on the cone-shaped sludge suction pipe is uniquely designed and adopts variable hole pitch, from inside to outside, from small to large, to ensure balanced sludge suction at the bottom of the whole pond, increase sludge suction concentration, and save sludge backflow power.
6. There are two ways of skimming: plate skimming and tube skimming (the former is conventionally used).
7. The equipment is easy to operate, and the operation of the equipment can be directly controlled locally/remotely.
Main Parameters and Installation Size Chart
Outline and Installation Chart






1. Working bridge 2. End beam driving device 3. Water outlet weir plate 4. Slag hopper 5. Scraper rake 6. Slag skimmer plate 7. Stabilizing cylinder 8. Support and current collector 9. Mud scraping system 10. Truss 11. Scum baffle 12. Sink cleaning brush



Packing and Delivery

1. Waterproof packing with the international export standard by 20ft, 40ft, 40hp container. Equipment Fittings, Electric Motor and Power Cabinet will be packed in Wooden Case or Iron Box. Other Equipment will be packed by Color-Stripes Plastic Cloth.
2. The whole plant machinery size are large as normal, so we will use Waterproof cloth to pack all of them. The motor, gear box or other easily damaged parts, we will put them into box. We have a professional shipping department, they will try their best to save your container quantity.
Why Choose Us?
1. Longdai has more than 10 years of experience in wastewater and sludge treatment.
2. We introduce German technology, thus our product is much better than other Chinese manufacturers.
3. We only use the best parts from best supplier.
4. We have our own R&D center and complete manufacture system.
About Us
Located in Yixing, an advanced and beautiful city of Jiangsu Province, China, Longdai Co., Ltd is a processing equipment supplier of petrochemical industry specialized in environmental processing &integrating independent research and development, design, general contracting, environmental protection equipment manufacturing, and relevant material supply.
The main products include mechanical bar screen, air flotation device, dosing device, mud scraper, cooling tower, decanter, chemical degreasing device, hydraulic screen, sand water separator, filter, conveyor, thickener , Biological filter, softened water, buried sewage treatment equipment, etc.
FAQ:
Q: Are You Trading Company Or Manufacture?
A: We Are Both Manufacture And Trading Company. We Have Over 30 Years' Professional Experience As a Waste Water Treatment Equipment Manufacturer And Engineering Service Enterprise.
Q : What Are Your Main Products?
A:Keywords :Sludge Dewatering Machine Equipment, Screw Type Sludge Dewatering Press Sludge Screw Press, Dewatering Sludge Machine Screw Press ,Sewage Treatment Equipment ,Sludge Treatment Plant,Screw Press Sludge Dewatering ,Dewatering Sludge,Dewatering Machine For Sludge, Dewatering Sludge Machine Screw Press, Rotary Drum Bar Screens, Equipment DAF, DAF Price ,Dissolved Air Flotation System Price, Sludge Shaftless Screw Conveyor,Chemical Dosing Device ,MBBR Price,MBBR Media,Disc Diffuser, Polymer Preparation Chemical Dosing System, and other customized machines.
Q: How Can I Find The Suitable Model?
A: Please Provide Flow Rate, Solids Content And Sludge Type, or directly contact us by the clicking the “contact” icon. We Can Assist You In Model Selection.
Q: Where Is Your Factory Located?
A: Yixing City, We are in the famous city of environmental protection equipment ,professional for Sludge screw press dewatering Machine ,Which Is Very Close To Shanghai With Only Less Than 3 Hours' Driving. Welcome for your visiting.
Q: Do You Provide OEM Service?
A: Yes. We Can Do The Customized Design According To Your Different Request for sludge Dewatering.
|
|
Half Bridge Sludge Scraper System With Secondary Sedimentation Tanks Images |